Η πλατεία μας ....
Ο Γέρακας είναι μια περιοχή που αναπτύσσεται ιδιαίτερα τα 20 τελευταία χρόνια. Κέντρο του Γέρακα, αποτελεί η πλατεία Μακεδονίας, με τα γύρω μαγαζιά της. Αρχικά, θα αναφερθούμε σε αυτή τη πλατεία και τα αξιόλογα σημεία της (πηγή, σιδηροδρομικός σταθμός) καθώς και πώς αυτή επηρεάζει καθημερινά τη ζωή των κατοίκων.
 |
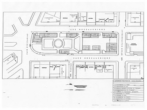
| Η κεντρική πλατεία του Γέρακα |
Ο τόπος συνάντησης των κατοίκων και η σημασία της πλατείας για το Δήμο
Το κέντρο του Δήμου εντοπίζεται γύρω από την Πλατεία Μακεδονίας, βόρεια της Λεωφόρου Μαραθώνος, η οποία αποτελεί σημείο συνάντησης των κατοίκων και κόσμημα της πόλης, ενώ πολιούχος του Γέρακα είναι ο Άγιος Ιωάννης. Η εμπορική αξία της περιοχής εκτείνεται κυρίως κατά μήκος της Λεωφόρου Μαραθώνος, στην οποία συγκεντρώνεται και η βιομηχανική και επιχειρηματική δράση.
Ένα συντριβάνι στη μέση στολίζει το κέντρο της πλατείας ενώ τριγύρω υπάρχουν πολλά παγκάκια και ψηλά δέντρα που προσφέρουν, ιδιαίτερα τους καλοκαιρινούς μήνες, την σκιά τους στους περαστικούς. Φυσικά δεν θα μπορούσαν να λείπουν και τα μαγαζιά και οι τοπικές ιδιωτικές επιχειρήσεις. Πολλές είναι οι καφετέριες, αλλά και σε μικρότερο βαθμό, και οι χώροι διασκέδασης όπου κανείς μπορεί να απολαύσει ένα καφεδάκι ή απλά να περάσει ευχάριστα την ώρα του. Επιπλέον, γύρω απ'την κεντρική πλατεία φιλοξενούνται και φροντιστήρια-εκπαιδευτήρια και καταστήματα ρουχισμού.
 |
| Σχέδιο Πλατείας |
Αξιόλογο σημείο, ο παλαιός σταθμός του σιδηροδρόμου Αθηνών-Λαυρίου
Μέχρι πριν από μερικά χρόνια γραμμές του τρένου διέρχονταν από το Γέρακα στη διαδρομή από την Αθήνα στο Χαλάνδρι, από το Γέρακα στην Κάντζα κι από εκεί στο Λαύριο. Εισερχόταν από το Χαλάνδρι μέσω της Οδού Παλαιολόγου-Πλακεντίας, διερχόταν από την Οδό Εθνικής Αντιστάσεως, έκανε στάση στην Πλατεία Μακεδονίας στο ύψος του γηπέδου και συνέχιζε επί της Σολωμού στη σημερινή Μπαλάνα μέχρι τη στιγμή που ξηλώθηκε.
 |
| Η διαδρομή που ακολουθούσε το τρένο |
Ο σταθμός του Γέρακα αποτελούσε το υψηλότερο σημείο της γραμμής με ύψος 207μ. και κατασκευάστηκε στις 2/1/1928. Ήταν ένα οικοδόμημα που ακολουθούσε τη μορφολογική σχεδίαση όλων των σταθμών του σιδηροδρομικού δικτύου της Ελλάδας, με στοιχεία νεοκλασικής και βιομηχανικής αρχιτεκτονικής. Σήμερα η στάση στο Γέρακα διασώζεται ως αποδυτήρια σε ένα χώρο αθλοπαιδιών και γειτνιάζει με μια μικρή περιοχή πρασίνου. Συνεχίζοντας παράλληλα προς τη λεωφόρο Μαραθώνος, σε ένα σημείο της νησίδας, το χώμα έχει διαβρωθεί και φαίνονται περίπου 10 cm σκουριασμένης σιδηροτροχιάς. Οι γραμμές, ακολουθώντας ευθεία πορεία, συνεχίζουν προς την οδό Σολωμού, κάτω από την Μαραθώνος.
 |
| Ο σιδηροδρομικός σταθμός όπως είναι σήμερα |
|
|
Η πηγή του Γέρακα
Στο παρελθόν ο Γέρακας ήταν καταπράσινος και είχε πολλά τρεχούμενα νερά. Οι μοναχοί της Μονής Πεντέλης θέλοντας να εκμεταλλευτούν αυτά τα τρεχούμενα νερά, προς όφελος του μοναστηριού και του κτήματος Γέρακα που τους ανήκε, ήταν οι πρώτοι που έφτιαξαν το Υδραγωγείο και την Πηγή τη δεκαετία του '30. Σε διάφορα σημεία του Γέρακα υπήρχαν πηγάδια, ώστε να χρησιμοποιούνται από τους κατοίκους, είτε για τα περιβόλια, είτε για τα νοικοκυριά. Σήμερα πηγάδια υπάρχουν στο Γιούπι, που σώζεται μέχρι σήμερα, μπροστά από την πολυκατοικία του Καμαρινού και ένα στο κέντρο της αυλής στον Άγιο Γιάννη του Γέρακα.
Όσο αφορά την πηγή, το νερό της δε χανόταν. περνούσε κατώ από τις λεύκες, ακριβώς στο σημείο που είναι σήμερα το 1ο Δημοτικό και από εκεί, περνούσε σε μια δεύτερη στέρνα, όπου το χρησιμοποιούσαν για να ξεδιψούν τα ζώα της περιοχής. Κάποια στιγμή όμως στέρεψε καθώς οι άνθρωποι, ενδιαφερόμενοι μόνο για το επαγγελματικό τους συμφέρον, θέλησαν να την εκμεταλλευτούν και να πλουτίσουν από το νερό της. Στη διάρκεια του χρόνου τα χαρακτηριστικά της αλλοιώθηκαν.Αν και έγιναν κάποιες προσπάθειες ανακατασκευής και εξωραισμού της Πηγής, σήμερα έχει μετατραπεί σε μια τσιμεντένια και αφιλόξενη γούρνα.