Ο ναός της Αυλιδείας Αρτέμιδος: «Ένας αρχαιολογικός χώρος με τη δική μας οπτική…
Η αιτιολόγηση της επιλογής μας:
|
Με έναυσμα τη συμμετοχή του σχολείου μας στο πρόγραμμα «click στην ιστορία» η ομάδα μας επέλεξε να εστιάσει στον ναό της Αυλίδας Αρτέμιδος, έναν αρχαιολογικό χώρο γνωστό από τα σχολικά μας κείμενα αλλά και από εκδηλώσεις που σχετίζονται με αυτόν και για τις οποίες έχουμε ενημερωθεί κυρίως από τα τοπικά Μ.Μ.Ε. Τον επιλέξαμε γιατί: - είναι ο πιο κοντινός σε εμάς αρχαιολογικός χώρος και για αυτό το λόγο και εύκολα προσβάσιμος, μπορούμε δηλαδή διοργανώνοντας μικρές εκδρομούλες να τον επισκεπτόμαστε συχνά, οπότε συνδυάζοντας την εργασία με την ψυχαγωγία ευελπιστούμε ότι θα έχουμε την ευκαιρία να αξιοποιούμε τον ελεύθερο χρόνο μας δημιουργικά -είναι ένας αρχαιολογικός χώρος δελεαστικός για περαιτέρω έρευνα και ενημέρωση αφού με την ενασχόλησή μας σίγουρα θα αντλήσουμε πληροφορίες και γνώσεις για το παρελθόν και τη σημασία του αλλά κυρίως γιατί: - είναι ένας αρχαιολογικός χώρος που θα μας εμπλέξει σε έναν διαφορετικό τρόπο προσέγγισης της αρχαιότητας αφού θα τον γνωρίσουμε ως μικροί ερευνητές, και δημοσιογράφοι, ως καταγραφείς και παρουσιαστές του υλικού |
Τι σημαίνει για εμάς ένας αρχαιολογικός χώρος:
|
|
Ο ναός της Αυλιδείας Αρτέμιδος: «Ένας αρχαιολογικός χώρος σε απόσταση αναπνοής…». Πως φτάνουμε ως εκεί;
|
|
Για να επικεφτεί κανείς το ναό της Αυλιδείας Αρτέμιδος στρίβει στο ύψος του Σχηματαρίου δεξιά και ακολουθεί το δρόμο προς τη Χαλκίδα. Αφού περάσει τα φανάρια στο Βαθύ και την ανηφόρα μετά από αυτά, στο τελείωμα της κατηφόρας που ακολουθεί κάνει δεξιά στον ασφάλτινο δρόμο, περνά τις γραμμές του τρένου καi κατευθύνεται ευθεία και τότε...στα 500 περίπου μέτρα αριστερά αλλά και δεξιά βλέπει τον αρχαιολογικό χώρο.
Yπάρχει όμως και δεύτερος δρόμος, ο πιο επίσημος...!!
Μετά το Βαθύ κατευθύνεται κανείς προς τη Χαλκίδα και λίγο πριν τη νέα γέφυρα στρίβει δεξιά, ακολουθεί δηλαδή τον παλαιό δρόμο προς την πόλη πριν την κατασκευή της γέφυρας. Μόλις στρίψει βλέπει και σχετική ταμπέλα και ύστερα από 200 περίπου μέτρα ξαναστρίβοντας δεξιά βλέπει και δεύτερη, που αν την ακολουθουθήσει φτάνει πρώτα στο εργοστάσιο τσιμέντων και στη συνέχεια μέσω μιας ωραίας διαδρομής με πεύκα και παράλληλα με έναν υπέροχο κόλπο και μια πανέμορφη θάλασσα αντικρύζει και τον αρχαιολογικό χώρο που μάλιστα αν και όχι τόσο φροντισμένος είναι περιφραγμένος!
Άσχετα όμως με την επιλογή της μιας ή της άλλης διαδρομής το σίγουρο είναι ότι τελικά θα εντυπωσιαστεί καθώς δίπλα σε μια τσιμεντοβιομηχανία και σε ένα περιβάλλον υποβαθμισμένο θα ανακαλύψει έναν κρυμμένο θησαυρό που μπορεί να τον προσεγγίσει περισσότερο μέσα από τις κατατοπιστικές πληροφορίες που οι ταμπέλες και τα σχεδιαγράμματα που υπάρχουν σε αυτόν παρέχουν!!!
Θα μάθει μάλιστα πως ο ναός ανακαλύφθηκε το 1956 από τον καθηγητή Θρεψιάδη που κατέδειξε ότι ο συγκεκριμένος χώρος δεν είναι απλά πέτρες αλλά κάτι περισσότερο!
|
|
Ο ναός της Αυλιδείας Αρτέμιδος: «Οι πρώτες πληροφορίες και οι πηγές μας…»
Η θεά Άρτεμις
Η Άρτεμις ανήκει στο δωδεκάθεο του Ολύμπου. Είναι η θεά του κυνηγιού και της σελήνης, η προστάτιδα των βουνών και των δασών αλλά και της αγνότητας και των τοκετών. Κόρη του Δία και της Λητούς γεννιέται μαζί με το δίδυμο αδελφό της Απόλλωνα, στο ιερό νησί της Δήλου, όπου είχε καταφύγει η Λητώ για να αποφύγει τη ζήλια και το θυμό της Ήρας. Από πολύ μικρή παίρνει την άδεια του Δία να παραμείνει ελεύθερη από τα δεσμά του γάμου και τιμωρεί σκληρά όποιον προσβάλλει την αγνότητά της.
Πολλές είναι οι ακόλουθές της τόσο στην κύρια ασχολία της, το κυνήγι όσο και γενικότερα στη ζωή. Η θεά απαιτεί από κάθε ακόλουθό της αλλά και κάθε ιέρειά της να δείχνουν τον ίδιο ζήλο και αφοσίωση στα πιστεύω και στις αρχές της και ιδιαίτερα στην παρθενία που αυτή πρώτη παραδειγματικά τηρεί. Αρκετές είναι οι περιπτώσεις που κάποια ακόλουθός της παρασύρεται από κάποιο θεό ή θνητό και στη συνέχεια γνωρίζει την οργή της Άρτεμης και θανατώνεται.
Είναι πιθανό ότι η λατρεία της προέρχεται από τη Μικρά Ασία αλλά με την πάροδο του χρόνου κατάφερε να ταυτισθεί με την αρχαιότερη ελληνική θεά, την «Πότνια θηρών» (Καραπασχαλίδου, 2010:7). Σύμφωνα με την μυθολογία, περιδιαβαίνει τα βουνά της Αρκαδίας και της Λακωνίας, έχοντας ως συνοδεία τις Νύμφες και μάλιστα σε αυτές τις περιοχές λατρεύεται ιδιαίτερα.
Ο σπουδαιότερος ναός της, ένα από τα επτά θαύματα του αρχαίου κόσμου, βρίσκεται στην Έφεσο της Μικράς Ασίας.
Σύμβολά της είναι η αρκούδα, το λιοντάρι, ο πάνθηρας, το ελάφι, ο λαγός, η ελιά, το στάχυ, τα λουλούδια.
Στην αρχαία ελληνική τέχνη απεικονίζεται ως πανέμορφη, κομψή νέα, συνήθως με κοντό χιτώνα, κρατώντας στο χέρι της το τρομερό τόξο και έχοντας κρεμασμένη στην πλάτη της τη φαρέτρα με τα φαρμακερά βέλη. Σημαντικά ιερά της υπάρχουν στη Σπάρτη (Άρτεμις Ορθία), στη Βραυρώνα, στο Μαρούσι και στην Αυλίδα, που συνδέεται με την παράδοση για τη θυσία της Ιφιγένειας από τον Αγαμέμνονα και που αποτελεί και το αντικείμενο της εργασίας μας. Η φήμη μάλιστα του συγκεκριμένου ιερού είναι μεγάλη και σε αυτό συρρέουν προσκυνητές ενώ τη θεά υπηρετούν οι ιέρειες, κορίτσια που συνήθως της αφιέρωνουν αγαλμάτινες απεικονίσεις ως ανάμνηση της ιερατείας τους.
Τα λόγια της Ιφιγένειας αντηχούν στα αφτιά μας:
"Ιφιγένεια εν Αυλίδι" |
|
Μόνο τούτο μου απομένει! (στ.1215) (στίχοι από την Ιφιγένεια εν Αυλίδι) |
η θεατρική παράσταση στην Αυλίδα - καλοκαίρι 2012...!!
|
Τέχνης Εξόρυξη..... Το Θέατρο Χαλκίδας μεταμορφώνει ανενεργό Λατομείο σε χώρο Τέχνης και Πολιτισμού. Τολμά και Δημιουργεί. Μετά από τη θετική ανταπόκριση του Αγροτικού Συνεταιρισμού Βαθέως Αυλίδας στο αίτημά του, ο χώρος του ανενεργού λατομείου, που βρίσκεται στο μεγάλο νησί, (θέση Παρίπα στην Αυλίδα), αρχίζει να ζωντανεύει από τον ενθουσιασμό των μελών και των φίλων του Θεάτρου Χαλκίδας. Ξεκινά μια τεράστια προσπάθεια διαμόρφωσης του συγκεκριμένου χώρου σε χώρο Τέχνης και Πολιτισμού με τη δέσμευση της συνεργασίας με τους επιστημονικούς φορείς της περιοχής, ώστε να υπάρξει απόλυτος σεβασμός στην ιστορία και το περιβάλλον του χώρου |
|||
|
Στόχος αποτελεί η αναβάθμιση της περιοχής, η ενημέρωση θεατών – επισκεπτών για την ιστορία της ευρύτερης περιοχής, η παρουσίαση θεατρικών παραστάσεων και πολιτιστικών εκδηλώσεων. Πριν ένα χρόνο, η προσπάθεια αυτή ξεκίνησε να ζωντανεύει με μόνο όπλο τον ενθουσιασμό των μελών και των φίλων του Θεάτρου Χαλκίδας. Σχέδια και όνειρα για την ανάπλαση και μεταμόρφωση του γκρίζου τοπίου. Σχέδια και όνειρα για την συνεργασία των φορέων της περιοχής, επιστημονικών και επαγγελματικών, ώστε αυτό το όνειρο να γίνει πρώτα απόλα, των ανθρώπων που ζουν και εργάζονται στην περιοχή. Σχέδια και όνειρα για φιλόδοξους στόχους: αναβάθμιση της περιοχής, ανάδειξη της ιστορίας της, μεταμόρφωση ενός γκρίζου και απρόσωπου χώρου, σε χώρο θεατρικών παραστάσεων και άλλων πολιτιστικών εκδηλώσεων. |
|||
| Σε ένα χρόνο έγιναν πολλά. Τώρα, ο χώρος αυτός αναπνέει, ζει, ξεκινά ένα όμορφο και μεγάλο ταξίδι. |
Σε παγκόσμια πρώτη η «Ιφιγένεια εν Αυλίδι» ξαναγυρνά στο χώρο της. Καλή αρχή! |
το πρόγραμμα της παράστασης του καλοκαιριού... και τα συγχαρητήρια...!!
|
|
|
|||||||
| οι τελευταίες προετοιμασίες....πριν την έναρξη της παράστασης | η παράσταση | ο χορός |
|||||||
|
η παράσταση
|
|
|||||||
| το πρόγραμμα | τα χειροκροτήματα..!!! |
...οι έπαινοι και οι ανθοδέσμες!! |
....και κάποιες σκηνέςπου πραγματικάξεχωρίσαμε...από
|
|
|
|
||||||
| Ο μεγάλος τραγικός ενέπνευσε στο πέρασμα του χρόνου πολλούς καλλιτέχνες και....παραμένει πάντα επίκαιρος...!! |
.......και εδώ με διπλό κλικ μια μικρή γεύση από γνωστή κινηματογραφική παραγωγή... |
...... αλλά και από μια θεατρική παράσταση με το χορό να απαγγέλλει...και να ψάλλει!! |
||||||
| Οι Αθηναίοι τον αγάπησαν ιδιαίτερα και στο θάνατό του πένθησαν.Ο δε Σοφοκλής παρουσιάσθηκε με μαύρο χιτώνα και εισήγαγε αστεφάνωτους τους υποκριτές και τον χορό κατά την είσοδό τους στο Θέατρο. Μάλιστα παρά την άρνηση του Μακεδόνα Βασιλιά να τους παραδώσει τα οστά του Ευριπίδη, εκείνοι ανήγειραν μέγα κενοτάφιο στην άγουσα προς Πειραιά οδό με το υπό Θουκυδίδη επίγραμμα:
http://el.wikipedia.org/wiki/%CE%95%CF%85%CF%81%CE%B9%CF%80%CE%AF%CE%B4%CE%B7%CF |
Πρωταγωνιστούν:
p://www.youtube.com/watch?v=nBMURc1Kt14 |
Παίζουν : Γιάννης Βόγλης, Κάτια Γέρου, Μαρία Σκούντζου, Περικλής Καρακωνσταντόγλου, Γιάννης Δεγαιτης, Παντελής Παπαδόπουλος, Ηλέκτρα Νικολούζου Κορυφαίες: Στέλλα Νικολοθανάση, Γιάννα Μαλακατέ, ΄Αννα Κουτσάφτικη, Ραλλου Μιχαλοπούλου κ.ά Στρατιώτες: Χρήστος Λούλης, Πέτρος Λαγούτης κ.ά. http://www.youtube.com /watch?v=ynha3qfgisE |
Αυλίδα
Η Αυλίδα βρίσκεται στη βοιωτική ακτή, στο νότιο Ευβοϊκό κόλπο, απέναντι από τη πηγή της Αρέθουσας στον Άγιο Στέφανο Χαλκίδας. Είναι γνωστή από τον Τρωικό Πόλεμο και τη θυσία της Ιφιγένειας. Στην Αυλίδα συγκεντρώνεται ο ελληνικός στόλος πριν αναχωρήσει για την Τροία. Ο χώρος που έχει αποκαλυφθεί στην Αυλίδα είναι ο τόπος λατρείας της Αρτέμιδος όπου βρίσκεται το ιερό της θεάς. Ο πόλεμος μεταξύ Ελλήνων και Τρώων δε βρίσκει την Άρτεμη αδιάφορη. Ένα από τα πρώτα περιστατικά που συμβαίνουν προτού ακόμη ξεκινήσει ο πόλεμος οφείλεται στο θυμό και την οργή της Άρτεμης. Ο ελληνικός στόλος, εξαιτίας της άπνοιας που είχε προκαλέσει η θεά, δεν μπορεί να ξεκινήσει. Ένα τυχαίο περιστατικό του αρχιστράτηγου των Αχαιών, του Αγαμέμνονα που είχε εισβάλει σ’ ένα άλσος, αφιερωμένο στην Άρτεμη και είχε σκοτώσει ένα ιερό ελάφι εξοργίζει τόσο πολύ τη θεά που απαιτεί προκειμένου ευνοϊκοί άνεμοι να βοηθήσουν τον απόπλου των ελληνικών πλοίων τη θυσία της κόρης του Ιφιγένειας, η οποία τελικά σώζεται με παρέμβαση της θεάς που την μεταφέρει στην Ταυρίδα να γίνει ιέρειά της αφήνοντας στη θέση της ένα ελάφι.
Σύμφωνα με το γνωστό Γεωγράφο Στράβωνα [ΙΧ 403] ξεκίνημα του Χιλιοναύτη στόλου των Αργείων υπό τον Αγαμέμνονα για την Τροία αποτελεί το μεγάλο Βαθύ ή Βαθύς Λιμένας και όχι στο Μικρό Βαθύ, αφού είναι ανεπαρκές ως αγκυροβόλιο υπερχιλίων πλοίων. Επίσης αναφέρεται ότι «επί των ημερών του η Αυλίδα είναι ανάμεσα στα δυο λιμάνια και κοντά στο Μικρό Βαθύ» (Καραπασχαλίδου, 2010:9). Για τη θέση του λιμανιού ωστόσο υπάρχει και μια τρίτη πρόταση ότι δηλ. το λιμάνι από όπου ξεκίνησαν για την Τροία οι Αχαιοί είναι στη Γλυφα, θέση με την οποία και συμφωνεί και ο Αδ. Σαμψών, καθηγητής στο Πανεπιστήμιο του Αιγαίου (Καραπασχαλίδου, 2010:9).
Η φάση ακμής του ιερού διαρκεί από την κλασική μέχρι και τη ρωμαϊκή περίοδο (Καραπασχαλίδου, 2010:9).
Η ευρύτερη περιοχή κατοικείται ήδη από τα μυκηναϊκά χρόνια (16ος-12ος π.Χ.), η ομηρική όμως Αυλίδα πιστεύεται ότι βρίσκεται βορειότερα, στη θέση Γλύφα, κοντά στη Χαλκίδα. Λείψανα της μυκηναϊκής εποχής έχουν βρεθεί στη βραχώδη περιοχή Γελαδοβούνι. Τη συνεχή χρήση του χώρου πιστοποιεί η εύρεση τμήματος αψιδωτού κτίσματος των γεωμετρικών χρόνων (10ος-8ος αι. π.Χ.) κάτω από το ναό της Αρτεμίδας του 5ου αι. π.Χ. Την ίδια εποχή κατασκευάζεται η Ιερή Κρήνη (Καραπασχαλίδου, 2010:8).
Στα ελληνιστικά χρόνια (330-30 π.Χ.) προστίθεται ο πρόναος στο ναό και κτίζεται συγκρότημα εργαστηρίων και ένας ξενώνας νοτιότερα (Καραπασχαλίδου, 2010:9).
Στα αυτοκρατορικά χρόνια (30 π.Χ.-330 μ.Χ.) ο ναός επισκευάζεται, ενώ το πλήθος των αναθημάτων δείχνει την άνθιση της λατρείας (Καραπασχαλίδου, 2010:9).
Το ιερό καταστρέφεται κατά τις επιδρομές των Γότθων του Αλάριχου το 396 μ.Χ. και αργότερα, στη θέση του ναού ιδρύονται λουτρικές εγκαταστάσεις (θέρμες) (Καραπασχαλίδου, 2010).
Η Αυλίδα δεν αποτελεί ποτέ μια πόλη. Θεωρείται τμήμα της θηβαϊκής επαρχίας μέχρι το 387 π.Χ. Από τότε ανήκει εδαφικά στην Τανάγρα. Ο Σπαρτιάτης βασιλιάς, Αγησίλαος, ως «νέος Αγαμέμνονας», θυσίαζει στο ιερό της Αυλιδείας Αρτεμίδος, προτού ξεκινήσει για την Ασία το 397 π.Χ. (Καραπασχαλίδου, 2010).
Σημαντική τέλος είναι και η μαρτυρία του Ομήρου [B 495] που χαρακτηρίζει την Αυλίδα «πετρήεσσα» και η πληροφορία του για ύπαρξη πηγής στα ανατολικά του ναού, κάτω από ωραίο πλάτανο, με βωμούς γύρω, από όπου ίσως ξεκινά η τοπική λατρεία που ενδεχομένως να έπεται της βωμικής λατρείας (Καραπασχαλίδου, 2010:8).
Παρατηρείται λοιπόν αδιάλειπτη κατοίκηση του χώρου από τα μυκηναϊκά μέχρι και τα ρωμαϊκά χρόνια. Η Αυλίδα κατορθώνει να επιζήσει κυρίως χάρη στην ύπαρξη του ιερού της Άρτεμης και στα κεραμικά εργαστήρια. Αναφορά στο ιερό της Αυλιδείας Αρτέμιδας γίνεται στο Στράβωνα (9,2,8) και στον Παυσανία (9,19,6 κε.) (Καραπασχαλίδου, 2010).
Σποραδικές ανασκαφές στην περιοχή γίνονται το 1928, κατά την ανέγερση του εργοστασίου «Τσιμέντα Χαλκίδος» και το 1954 από τον έφορο αρχαιοτήτων Ι. Θρεψιάδη. Συστηματικότερες έρευνες διενεργούνται από τον Ι. Θρεψιάδη το διάστημα από το 1956 ως το 1961 με την υποστήριξη της Αρχαιολογικής Εταιρείας. Τα ευρήματα των ανασκαφών φυλάσσονται στο Αρχαιολογικό Μουσείο της Θήβας, με εξαίρεση τρία ξίφη και λίγα αγγεία που φυλάσσονται στο Αρχαιολογικό Μουσείο της Χαλκίδας. Συντήρηση των τοίχων των οικοδομημάτων γίνεται σε τακτά χρονικά διαστήματα από την ΙΑ' Εφορεία Προϊστορικών και Κλασικών Αρχαιοτήτων.
Ο χώρος λατρείας της Αυλιδείας Αρτέμιδος
|
|
Ο ναός της Αυλιδείας Αρτέμιδος
|
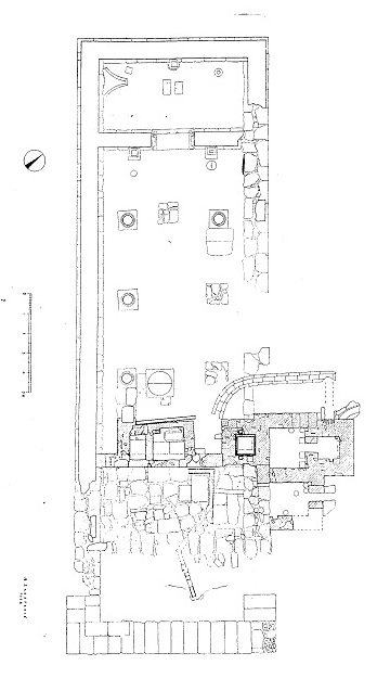
Ο χώρος λατρείας της Αυλιδείας Αρτέμιδος διατηρείται σήμερα στο νότιο Ευβοϊκό κόλπο με τον ναό, την ιερή κρήνη και διάφορα άλλα κτήρια που προστίθενται κατά την ελληνιστική περίοδο, καθώς επίσης και συγκρότημα λουτρών (θέρμες) της ύστερης ρωμαϊκής εποχής (Καραπασχαλίδου, 2010). Από το ιερό της Αυλίδας Αρτέμιδος ξεχωρίζει ο κλασικός ναός της Θεάς, που ουσιαστικά ήταν η κατοικία της, το κτήριο που στέγαζε το λατρευτικό άγαλμα της και ο περιβάλλων χώρος έξω από το κτήριο του ναού όπου συγκεντρώνονταν οι πιστοί και βρισκόταν και ο βωμός για την προσφορά θυσιών και την άσκηση της λατρείας (Καραπασχαλίδου, 2010).Ο χώρος του ιερού απλώνεται μπροστά από το ναό στα νοτιοανατολικά. Κτίστηκε τον 5ο αι. π.Χ, πιθανόν πάνω στα ερείπια παλαιότερου ναού. Οι διαστάσεις του είναι 9,40 χ 31 μ Αποτελείται από πρόναο ανοιχτό με 4 ή 6 δωρικούς κίονες στην πρόσοψη, σηκό που διαιρείται σε 3 κλίτη με δύο σειρές τεσσάρων ιωνικών κιόνων και άδυτο. Είναι κτισμένος με καλά πελεκημένους ασβεστόλιθους, εκτός από το προστώο, το οποίο έχει κατασκευαστεί με πωρόλιθους. Η τοιχοδομία του, ιδίως στην νότια και τη δυτική πλευρά που σώζεται σε όλο το μήκος και σε ύψος 0,80 μ. από τη βαθμιδωτή κατευθυντηρία αποτελεί άριστο δείγμα εργασίας του 5ου αι. π.Χ. Το άδυτο χωρίζεται από το σηκό με μαρμάρινη πόρτα και είχε έκταση 3,70 χ 7,55 μ. Δυο αγάλματα του Απόλλωνα και της Αρτέμιδας στέκονται στην είσοδο του άδυτου. Στο εσωτερικό του ναού βρέθηκαν αγάλματα, βάσεις αναθημάτων, μικροί «θησαυροί» και τράπεζες προσφορών. Από τα μαρμάρινα αγάλματα της θεάς, το ένα ήταν με δάδες και το άλλο την έδειχνε να τοξεύει (Καραπασχαλίδου, 2010:9). Από την ιερή πλάτανο σωζόταν συμφώνα με αναφορά του Ομήρου στην Ιλιάδα [Β307] τμήμα από τον κορμό της αλλά και με πληροφορία του Παυσανία αυτό φυλασσόταν στον ναό. Υποθετικά λοιπόν προτείνεται ως θέση στηρίξης του ιερού ξύλου, λίθινο βάθρο, κοντά στο δεύτερο κίονα αμέσως μετά την είσοδο, διαμέτρου 1,23μ. και ύψους 0,35μ. (Καραπασχαλίδου, 2010:9). Στη ρωμαϊκή εποχή αντικαταστάθηκαν όλοι οι κίονες του ναού. |
|
Η ιερή κρήνη του τεμένους βρίσκεται 8μ. ανατολικά και πλαισιώνεται από περίβολο. Το νερό δεν ρέει από κρουνούς αλλά αντλείται από τετράγωνη (1,80 χ 1,80 μ.) δεξαμενή, που είναι προσιτή από κτιστή κλίμακα και πιθανόν στεγασμένη. Ο F. Glaser υποστηρίζει ότι η Κρήνη είναι στεγασμένη, όπως η λεγόμενη Κρήνη που απεικονίζεται σε ανάγλυφο της Ακρόπολης. Τη φυσιογνωμία του τοπίου αξίζει να σημειωθεί ότι περιγράφει και ο Ευριπίδης, στο έργο του «Ιφιγένεια εν Αυλίδι». Ίσως από την πηγή αυτή και τους βωμούς που βρίσκονται γύρω της να ξεκινά η τοπική λατρεία (Ιλιάδα Β,303-307). |
Στην ελληνιστική περίοδο κατασκευάστηκε συγκρότημα κτηρίων (κτήρια ''Λ'', ''Ν'', ''Π'', ''Μ''), τα οποία χρονολογούνται στον 3ο-2ο αι. π.Χ και βρίσκονται νότια του ναού της Αρτέμιδος. Το συγκρότημα αποτελούν δωμάτια που διατάσσονται γύρω από μία κεντρική αυλή. Τα ευρήματα, ανάμεσα στα οποία υπάρχουν ένας κεραμικός κλίβανος, πηλός για αγγεία και ειδώλια και κτιστοί πάγκοι, έδειξαν ότι τα κτήρια ''Λ'', ''Ν''΄ και ''Π'' ήταν οργανωμένα εργαστήρια αγγειοπλαστικής και κοροπλαστικής, τα οποία κατά τον Πλούταρχο και Παυσανία αποτελούν τον σπουδαιότερο οικονομικό πόρο της μικρής αλλά ένδοξης Βοιωτικής πόλης, ενώ το ΄΄κτήριο Μ΄΄ το οποίο αποκαλείται στη βιβλιογραφία «Καταγώγιον» ίσως ήταν ξενώνας , στον οποίο διέμεναν οι επισκέπτες του ιερού (Καραπασχαλίδου, 2010).
Αργότερα, στη θέση του ναού που καταστράφηκε το 396 μ.Χ. (εισβολή των Γότθων στην Ελλάδα), ιδρύθηκαν λουτρικές εγκαταστάσεις (θέρμες). Οι θέρμες κατασκευάστηκαν μετά τον 4ο αι. μ.Χ επάνω στο ανατολικό τμήμα του σηκού του ναού και στο χώρο βορειότερα. Ως οικοδομικό υλικό χρησιμοποιήθηκαν αρχιτεκτονικοί λίθοι και γλυπτά από το ναό (Καραπασχαλίδου, 2010).
Ο ναός της Αυλιδείας Αρτέμιδος: «η πρώτη μας επιτόπια αυτοψία...»
αλλά πριν από αυτήν...μια μικρή δημοσκόπηση... σε τυχαίο δείγμα που θα αποκαλύψει αν ο ναός της Αυλιδείας Αρτέμιδος είναι ή όχι ευρύτερα γνωστός!!!
· Οι ερωτήσεις της δημοσκόπησης μας:
1η ερώτηση: Γνωρίζετε τον ναό της Αυλιδείας Αρτέμιδος;
2η ερώτηση: Τον έχετε επισκεφτεί;
3η ερώτηση: Είχε ενδιαφέρον για εσάς;
4η ερώτηση: Νομίζετε ότι έχει αξιοποιηθεί ως αρχαιολογικός χώρος;
· Το δείγμα μας:
Πενήντα (50) συμπολίτες μας που επιλέχθηκαν τυχαία ως προς το φύλο, την ηλικία και το μορφωτικό επίπεδο.
· Τα αποτελέσματα:
| ο πίνακας των αποτελεσμάτων και τα σχετικά γραφήματα
|
You need flash player installed to preview ppt and pdf files
|
«14/2/2013»: η πρώτη μας επίσκεψη...!!
Η πρώτη μας επαφή με το χώρο, αν και είχε οργανωθεί διαφορετικά με στόχο τη γενικότερη εποπτεία του, έγινε λόγω βροχής σύντομα και αποσπασματικά αλλά σίγουρα συμπλήρωσε τις πληροφορίες από τις πηγές και πλούτισε τις αισθήσεις μας, αφού μας έδωσε τη δυνατότητα να δούμε και να αγγίξουμε τα σωζόμενα τμήματα του ναού της Αυλιδείας Αρτέμιδος και περπατώντας τον να αντιληφθούμε τα όρια του.Συνδρομητές σε αυτό το εγχείρημα υπήρξαν η αρχαιολόγος της ΙΑ΄ Εφορίας Αρχαιοτήτων κ. Κατσάλη Σοφία, που χωρίς να πτοείται από τη βροχή μας κατατόπισε για το χώρο, τις λειτουργίες του, την ιστορία του και ο πρόεδρος της Πολιτιστικής Αρχαιόφιλου Εταιρείας Αυλίδας κ. Σιακανδάρης Νικόλαος που πολύ πρόθυμα και με ιδιαίτερη αγάπη μάς μίλησε για το ναό μεταφέροντας μας την αγωνία του για την αξιοποίηση του χώρου και πείθοντας μας για την αναγκαιότητά της!! .
|
You need flash player installed to preview ppt and pdf files
|
| ...και για μια ''αμεσότερη'' εποπτεία βινεοσκοπήσαμε τον ναό... !! και σας τον παρουσιάζουμε!! ...... υπό τους ήχους της βροχής πάντα που σταδιακά δυνάμωνε!! |
(*και για την έναρξη της προβολής σε όλα τα βιντεάκια μας απαιτείται διπλό κλικ.....)'' ..ο ναός σε ολόπλευρη θέα'' |
|
Αμέσως μετά σας παρουσιάζουμε:
*την ιερή κρήνη και τις εύλογες απορίες μας!!
|
|
Αυτή η υψηλή επισκεψιμότητα εξηγεί μάλλον και το σπουδαιότερο κινητό εύρημα από την περιοχή της ιερής κρήνης, ένα τμήμα πλάκας ενεπίγραφης των ελληνιστικών χρόνων, στην οποία σώζονται 18 στίχοι τιμητικού ψηφίσματος του δήμου Ερετριεών για κάποιον Εύδημο Ευδήμου Ακάρνανα,που ελευθέρωσε Ερετριανούς αιχμάλωτους και βοήθησε πάρα πολύ την πόλη τους. Καταλήξαμε λοιπόν ότι μάλλον πρόκειται για αντίγραφο που οι Ερετριανοί έστησαν στον πολυσύχναστο ιερό για ευρύτερη προβολή και δημοσιότητα!!
Στη συνέχεια σειρά έχουν:
* τα εργαστήρια αγγειοπλαστικής και κοροπλαστικής που μάλλον ήταν εργαστήρια τέχνης και συνεισέφεραν στον πλούτο της Αυλίδας:
|
|
|
| ...ακόμη πληρέστερες πληροφορίες από την ακούραστη αρχαιολόγο μας!!! |
''κεραμίδια από την κεράμωση της στέγης που ψήνονταν σε κεραμικούς κλιβάνους όπως και τα αγγεία....... ....εδώ υπήρχε μεγάλη παραγωγή κεραμικών και αγγείων'' ''τα κεραμίδια που βλέπουμε δεν είναι τυχαία!'' |
|
και βέβαια κλείνουμε με:
*τον ξενώνα, γιατί πολλοί οι επισκέπτες της θεάς, που μάλλον απολάμβαναν και τις ανέσεις του!!
|
|
You need flash player installed to preview ppt and pdf files
|
και τέλος αξίζει την αναφορά
* το πηγάδι.....που βρέθηκε στον υπαίθριο χώρο ενός εργαστηρίου...
|
|
||||
| και τέλος το πηγάδι που εξυπηρετούσε τις ανάγκες όλων... και οι εύλογες μας απορίες για την κατασκευή του αφού.... |
... κάτω από την πέτρα που κλείνει το στόμιο του... αποκαλύπτεται το βάθος του αλλά και η ικανότητα κατασκευής τέτοιων πηγαδιών! τα τοιχώματα του πηγαδιού είναι αριστοτεχνικά.......!!! |
| και όλα αυτά επιβεβαιώνει ένα βίντεο - ντοκουμέντο: |
με την επαναλαμβανόμενη ερώτηση-κλειδί: ''πως άνοιξαν τόση μεγάλη τρύπα;'' και την επιφωνηματική έκφραση θαυμασμού: ''πο! πο! πο!!!' Το πηγάδι και οι απορίες μας.... |
|
-επίσης γνωρίσαμε το ευρύτερο ιστορικό πλαίσιο που πλαισιώνει την Τρωική εκστρατεία.
Πληροφορηθήκαμε δηλαδή ότι:
- το 1500π.Χ. η Αίγυπτος, το βασίλειο των Χετταίων, οι Μυκήνες και η Μινωϊκή Κρήτη ελέγχουν τους θαλάσσιους δρόμους της Μεσογείου
- την ίδια εποχή και μετά την έκρηξη του ηφαιστείου της Σαντορίνης παρακμάζει η Μινωϊκή Κρήτη και στις αρχές του 1200 π.Χ. εμφανίζονται οι λαοί της θάλασσας, Πελασγοί, Τευκροί, Σκολότοι, Δαναοί, Βησσοί, Λύβιοι και Τρώες οι οποίοι και σηματοδοτούν με την εμφάνισή τους τη συρρίκνωση της Αιγυπτιακής αυτοκρατορίας, την ολοκληρωτική καταστροφή της Χετταϊκής και τις εκτεταμένες καταστροφές πόλεων στην παραλιακή Συρία και Κύπρο και
- το 1215 π.Χ., όταν πολιορκείται η Αίγυπτος, στην Αυλίδα συγκεντρώνεται ο στόλος των Αχαιών προκειμένου να εκστρατεύσει κατά της Τροίας.
Τοποθετήσαμε τον ναό χωροταξικά και κατανοήσαμε τη λειτουργικότητα της θέσης του. Έτσι είδαμε:
- ανατολικά του ιερού της Αρτέμιδας: τον λόφο Νησί ή Βεσαλάς ή Γελαδοβούνι, στην κορυφή του οποίου εκτείνονται κατάλοιπα με ακανόνιστους λίθους του προϊστορικού φρούριου της Αυλίδας και το λιμάνι που στην αρχαιότητα έφερε την επωνυμία «μεγάλος λιμήν»
- βόρεια, το λιμάνι που στην αρχαιότητα έφερε την επωνυμία «μικρός λιμήν»
- δυτικά, το μεγάλο βουνό Σαλγανέας την κορυφή του οποίου στεφανώνει αρχαίο οχυρό, δημιούργημα του Αντιγόνου, επίγονου του Μ. Αλεξάνδρου που έστειλε τον Πτολεμαίο για να ελευθερώσει τις ελληνικές πόλεις. Εκείνος μάλιστα, αφού τοίχισε το Σαλγανέα έφτιαξε μικρά οχυρά στις κορυφές των γύρω υψωμάτων (Σγάλια, Τσούκα, Μαδάρι, Γαλατσίδεδα, Κλεφτολούτσου, Ταμπούρια, Γκριτζιώτη, Μεσοβούνι) ως το Μεσσάπιον όρος, τον Κτυπά, συνδέοντάς τα με τείχος, με δρόμο 11 km ώστε να υπάρχει ισχυρή προστασία
- νότια, κατάλοιπα προϊστορικού οικισμού στη θέση λόφος, Πύργος Παραλίας, όπου οι αρχαιολόγοι τοποθετούν την αρχαία Υρία, κτισμένη από τον Υριέα, γιο του Ποσειδώνα και της Αλκυόνης ή του Απόλλωνα και της κόρης του Ποσειδώνα Αίθουσας
Μάθαμε επιπλέον ότι:
- Η Αυλίδα κατά τον Παυσανία, πήρε το όνομά της από την ομώνυμη κόρη του πρώτου βασιλιά της Βοιωτίας Ωγύγη και κατά άλλη εκδοχή από το Αύλις, μυθολογικό επίθετο των θεών Δία και Απόλλωνα ή από τη λέξη αυλ-ός αφού λόγω των καλαμιώνων της ήταν περιοχή κατασκευής αυλών ή τέλος από τη λέξη δί-αυλος επειδή ο πετρώδης λόφος όπου εκτεινόταν περιβαλλόταν παντού από νερό.
- Η Αυλίδα υπήρξε το μεγαλύτερο λιμάνι της Βοιωτίας στον Ευβοϊκό κόλπο και το μεγαλύτερο μετά της Ιωλκού κατά τους προϊστορικούς χρόνους
- Η Αυλίδα αναφέρεται στην αρχαία γραμματεία και από τον Ησίοδο («Έργα και Ημέραι», στ. 651), τον Πλίνιο, τον Πλούταρχο, τον Οβίδιο, τον Στράβωνα και τον ΕυριπίδηΕνδιαφέρον για την προσέγγιση της κοιλάδας της αρχαίας Αυλίδας παρουσιάζουν οι θέσεις: Πλατύ πηγάδι, Μεγάλο Βουνό ή Σαλγανέας, Νησί ή Βεσαλάς ή Γελαδοβούνι και η πεδιάδα Σχοινέζα στη νοτιοδυτική πλευρά του Σαλγανέα
- Ενδιαφέρον για την προσέγγιση της κοιλάδας της αρχαίας Αυλίδας παρουσιάζουν οι θέσεις: Πλατύ πηγάδι, Μεγάλο Βουνό ή Σαλγανέας, Νησί ή Βεσαλάς ή Γελαδοβούνι και η πεδιάδα Σχοινέζα στη νοτιοδυτική πλευρά του Σαλγανέα
- Ο περίπατος στις επάλξεις του Μεγάλου βουνού προσφέρει πανοραμική θέα σε Εύβοια και Βοιωτία και στο μεγαλείο του Ευρίππου
- Σε βάθος εξήντα χρόνων τα αρχαιολογικά δεδομένα πιστοποιούν διαδοχικές καταστροφές καθώς και ανασφάλεια εν όψει εχθρικής επιδρομής (τείχος Δρυμαίων, ακρόπολη Γλά, οχυρωματική γραμμή Αυλίδος...)
- Ο ναός της Αυλιδείας Αρτέμιδας εντάσσεται στα αρχαιολογικά ευρήματα υψίστης εμβέλειας παγκοσμίως!!....
- Το ιερό της Αρτέμιδος ήταν πολυσύχναστο και πανελληνίως γνωστό από τα ομηρικά έπη
- Στην είσοδο της κρήνης κατέληγε στενός λιθόστρωτος δρόμος που ξεκινούσε από τα βοειοανατολικά του λιμανιού του μικρού Βαθέος και διέσχιζε κτιριακό συγκρότημα που πιθανόν ανήκε σε καταστήματα......
- Τα εργαστήρια αγγειοπλαστικής και κοροπλαστικής στην Αυλίδα θεωρούνταν ιδιαίτερα σημαντικά και η παραγωγή τους εφάμιλλη με αυτήν των σύγχρονών τους εργαστηρίων αργυροχρυσοχοίας!!!.....
-Ο ξενώνας αποτελούνταν από 10 διαμερίσματα που λειτουργούσαν ως κοιτώνες, τράπεζες και ένα μαγειρείο και ότι διέθεταν εσωτερική αυλή ενώ το εμβαδόν του ήταν περίπου 400 τ.μ......
| -Τα σπουδαία αγάλματα που έχουν ανασκαφεί είναΪ: |
You need flash player installed to preview ppt and pdf files
|
- Μετά τον Θρεψιάδη, αν και αρκετοί Έλληνες και ξένοι αρχαιολόγοι επεσήμαναν τη μεγάλη αρχαιολογική σπουδαιότητα της ευρύτερης περιοχής του ιερού της Αρτέμιδος και ζήτησαν τη συνέχιση των ανασκαφών δεν έχουν ως τις μέρες μας εισακουστεί...!!
- Μεγάλη έκταση δεν έχει ανασκαφεί αν και σίγουρα κρύβει ευρήματα που θα μπορούσαν να φωτίσουν περισσότερο τον αξιολόγο αρχαιολογικό χώρο
- Ο αρχαιολογικός χώρος απαιτείται να ενοποιηθεί και επιπλέον να αναδειχθεί η προϊστορική ακρόπολη της Αυλίδας
- Οι τουρίστες που επισκέπτονται το χώρο δεν τυχαίνουν μιας οργανωμένης προσπάθειας ανάδειξής του και οι ευαισθητοποιημένοι πολίτες της Αυλίδας επικεντρώνονται στην ως τώρα αδυναμία στήριξης ενός πολιτιστικού - εναλλακτικού τουρισμού που πρόθυμα θα υπηρετούσαν.
Τέλος εκφράσαμε μια σειρά από ερωτήματα τα οποία μας οδήγησαν σε έναν ευρύτερο προβληματισμό που μάλλον μας προκαλεί να αναδείξουμε τα ζητήματα:
- της αξιοποίησης του ναού και του ευρύτερου αρχαιολογικού χώρου και
- της πληρέστερης ενημέρωσή μας για ενέργειες που ήδη έχουν γίνει στην κατεύθυνση αυτή και για άλλες που έχουν δρομολογηθεί ή και για αυτές που ακόμη κυοφορούνται αλλά και
- της συμβολής μας σε δράσεις που θα εξυπηρετούσαν αυτό τον σκοπό
Ο ναός της Αυλίδας Αρτέμιδος: «υπό το πρίσμα επιστημόνων, μελετητών και απλών καθημερινών προσώπων…»
Αξίζει να σημειωθεί ότι από μια μικρή, λόγω των σύντομων χρονικών πλαισίων της διεξαγωγής της εργασίας μας, έρευνα σχετικά με κατατεθειμένες απόψεις επιστημόνων, μελετητών και απλών καθημερινών προσώπων μάθαμε ότι:
- το Ολλανδικό Ινστιτούτο Αθηνών στην επέτειο των τριάντα ετών λειτουργίας του, διοργάνωσε έκθεση φωτογραφίαςαπό 1 έως 30/6/2006 με θέμα: ''Αυλίδα, τόπος μύθου και ιστορίας, τόπος οχυρός'' με φωτογραφίες του ζωγράφου Σέργιου Μοσχονά και σε συνεργασία με την ΙΑ΄ Εφορεία Προϊστορικών και Κλασσικών Αρχαιοτήτων και την Αρχαιόφιλο Εταιρεία Αυλίδας, στην οποία και αναδείχθηκε ο συγκεκριμένος αρχαιολογικός χώρος (Τύπος της Κυριακής, Πολιτιστικό ένθετο, 4/4/2006)
- ο αρχαιολόγος Αναστάσιος Ορλάνδος είχε γράψει ότι ''ο ναός της Αρτέμιδος έχει σημασία για την ιστορία της αρχιτεκτονικής των ναών, για το αρχαϊζον σχήμα του και την καλή διατήρηση των μερών του΄΄(Τύπος της Κυριακής, Πολιτιστικό ένθετο, 4/4/2006)
- ο Ιωάννης Τραυλός εξέτασε τον ναό ως μέρος μιας τριλογίας και τον συνέδεσε με δύο ακόμη ναούς που σχετίζονται με την ιστορία της Ιφιγένειας, τον ναό της Αρτέμιδος Ταυροπόλου στη σημερινή Λούτσα και το ναό της Αρτέμιδος Βραυρωνίας όπου ίσως βρίσκεται ο τάφος της Ιφιγένειας (Τύπος της Κυριακής, Πολιτιστικό ένθετο, 4/4/2006).
-ο Ι. Θρεψιάδης, ο έφορος της Γ΄ Αρχαιολογικής περιφέρειας στο λόγο που είχε ετοιμάσει για τα εγκαίνια του νέου Μουσείου Θηβών που όμως δεν πρόλαβε να εκφωνήσει αφού πέθανε μια βδομάδα νωρίτερα στις 16/9/1962, περιέγραφε την αγωνία του για τη συνέχιση του έργου του δηλώνοντας ο ίδιος ήδη υπερβολικά κουρασμένος και παρακαλούσε να υπάρξει μέριμνα για να έρθουν στο φως και άλλα ευρήματα και να διασωθεί ο θησαυρός της ανατολικής πλευράς του Μεγάλου Βουνού τονίζοντας ότι ήδη η επιτρεπόμενη λατόμηση εξαφάνισε το μυκηναϊκό νεκτροταφείο του υψώματος στην όχθη του Μικρού Βαθέος. Δήλωνε μάλιστα χαρακτηριστικά ότι: ΄΄Υπάρχουν τόσα βουνά γύρω για τη λατόμηση! Ας σωθεί ''η ωραία Αυλίς'' όπως την αποκαλεί ο ιστορικός Πλούταρχος και τα πολύτιμα μνημεία της΄΄(Αρχείον Ευβοϊκών Σπουδών 1975, τόμος Κ) ( Γ. Π. Κάραλης, ΄΄Τα Νέα'', 1/6/1974).
- οι αρχαιολόγοι της ΙΑ΄ Εφορείας Προϊστορικών και Κλασσικών Αρχαιοτήτων θεωρούν ότι πρέπει πράγματι να σωθεί και να αναδειχθεί ''η ωραία Αυλίς'' και ότι υπάρχει σχεδιασμός προς την κατεύθυνση αυτή.
-οι σύγχρονοί μας κάτοικοι της Αυλίδας που μετέχουν ως μέλη στην Αρχαιόφιλο Εταιρεία Αυλίδας όχι μόνο μιλούν αλλά και γράφουν για την πολιτιστική, μνημειακή κληρονομιά του τόπου τους που μπορεί αν συνδυαστεί με το φυσικό και ιστορικό περιβάλλον να δώσει νέα προοπτική οικονομικής -ολοκληρωμένης και βιώσιμης-ανάπτυξής του, καθώς μπορεί να ελκύσει τουρισμό υψηλής ποιοτικής τάξης. Για αυτό και με κάθε τρόπο εκφράζουν την επιθυμία τους για τη συντήρηση και δημιουργική διαχείριση των πολιτιστικών τοπίων της περιοχής τους, για την ενοποίηση των αρχαιολογικών χώρων και την ανάδειξή τους και δραστηροποιούνται σε αυτή την κατεύθυνση με ζήλο.
Αντί επιλόγου
Από τη συμμετοχή μας στο πρόγραμμα «click στην ιστορία» η ομάδα μας έμαθε πολλά...αν και πολλές δράσεις μας ματαιώθηκαν λόγω απρόβλεπτων παραγόντων όπως η προγραμματισμένη επίκεψη στο μουσείο της Θήβας που δεν ήταν εφικτή λόγω εργασιών σε αυτό ή η συνάντηση με κάποιους φορείς λόγω φόρτου εργασίας από την πλευρά τους ....κλπ. Εντούτοις προσεγγίζοντας το ναό της Αυλιδείας Αρτέμιδας:
-προσεγγίσαμε τη γνώση εναλλακτικά,
-πήραμε πρωτοβουλίες,
-είδαμε τις προεκτάσεις και τις οπτικές ενός ευρύτερου προβληματισμού και
-κατανοήσαμε ότι μπορούμε να επηρεάσουμε τις εξελίξεις δρώντας εδώ και τώρα ως ενεργοί πολίτες.
Έτσι η βασική κατά τη γνώμη μας κατάληξη της όλης μας προσπάθειας είναι η δέσμευσή μας για την "υιοθεσία'' του συγκεκριμένου αρχαιολογικού μνημείου και η περαιτέρω ενασχόλησή μας για αυτό προς όποια κατεύθυνση μάς επιτρέπεται...γιατί σίγουρα χρειαζόμαστε την ενδυνάμωση που μας προσφέρει μια ''εντός και εκτός΄'' του σχολείου δράση αλλά και ''επί τα κοινωνικά αυτά''. Μας ενδιαφέρει το σχολείο, η τοπική κοινωνία, η ευρύτερη κοινωνία και δρώντας σε όλα τα επίπεδα προετοιμαζόμαστε για το μέλλον μας και εξασφαλίζουμε τα εργαλεία μας!!
Το πρόγραμμα «click στην ιστορία» και ο ναός της Αυλιδείας Αρτέμιδας υπήρξαν οι αφορμές για ''να δούμε τον τόπο μας'' και να νιώσουμε το ''πόσο παράξενα αντρειεύεται κανείς'', όταν ακούγοντας τους περασμένους, σχεδιάζει με τα δεδομένα του παρόντος τις αποφάσεις για τη δική του ζωή, ήταν δηλαδή για εμας πράγματι μια τέτοια "ευ-καιρία" αυτο-γνωσίας και αυτο-εξέλιξης.
H ομάδα μας: Η.Α., Β.Γ., Α.Κ., Θ.Κ.
Πηγές
- Αρτέμις. Διαθέσιμο στον δικτυακό τόπο:http://odysseus.culture.gr/a/5/ga502.jsp?obj_id=8723
- Άρτεμις. Διαθέσιμο στον δικτυακό τόπο: http://el.wikipedia.org/wiki/%CE%86%CF%81%CF%84%CE%B5%CE%BC%CE%B9%CF%82
- Αρχείο Ετικετών: θεά Άρτεμη - Η χερσόνησος του Άθω στην αρχαία Ελλάδα και η λατρεία της θεάς Άρτεμης. Διαθέσιμο στον δικτυακό τόπο: http://stardust30.wordpress.com/2008/09/27/xersonisostouathokaiilatreiatisartemis/
-Αρχείον Ευβοϊκών Σπουδών 1975, τόμος Κ΄
-Γ. Π. Κάραλης, ΄΄Τα Νέα'', 1/6/197
- Ευριπίδης. Διαθέσιμο στον δικτυακό τόπο:http://el.wikipedia.org/wiki/%CE%95%CF%85%CF%81%CE%B9%CF%80%CE%AF%CE%B4%CE%B7%CF%82
- Ιερό Αυλιδείας Αρτέμιδος. Ιστορικό. http://odysseus.culture.gr/h/3/gh351.jsp?obj_id=2417
- Ναός Αυλιδείας Αρτέμιδος. Διαθέσιμο στον δικτυακό τόπο: http://8848m.wordpress.com/2007/07/23/naos/
- Καραπασχαλίδου, Α. (2010). Αρχαιολογικός χώρος Αυλίδας - 55 χρόνια ανασκαφών Ιωάννη Θρεψιάδη.
- Ναός Αυλιδείας Αρτέμιδας. Διαθέσιμο στον δικτυακό τόπο: http://www.dimos-xalkideon.gr/Site/myPageUser/PageUser.asp?Lang=1&BMPID=1001&MMPID=1002&ID=1314&ParentID=1063&SubParentID=1015&PageID=1314&CatID=1
-Τύπος της Κυριακής, Πολιτιστικό ένθετο, 4/4/2006.
Φωτογραφικό υλικό
Το φωτογραφικό υλικό αποτελείται:
- από φωτογραφίες που οι ίδιοι πήραμε.
- από φωτογραφίες από το διαδίκτυο:
- Αρχαιολογικός χώρος Αυλίδας αρχείο ΕΟΤ. Διαθέσιμο στον δικτυακό τόπο: http://blog.visitgreece.gr/el/%CE%B9%CE%B5%CF%81%CF%8C-%CF%84%CE%B7%CF%82-%CE%B1%CF%85%CE%BB%CE%B9%CE%B4%CE%B5%CE%AF%CE%B1%CF%82-%CE%B1%CF%81%CF%84%CE%AD%CE%BC%CE%B9%CE%B4%CE%BF%CF%82-%CE%B7-%CE%B1%CF%85%CE%BB%CE%AF%CE%B4%CE%B1/
- Αρχαιολογικός χώρος Αυλίδα. Διαθέσιμο στον δικτυακό τόπο: http://www.trivago.gr/%CF%87%CE%B1%CE%BB%CE%BA%CE%AF%CE%B4%CE%B1-447541/%CE%BC%CE%BD%CE%B7%CE%BC%CE%B5%CE%AF%CE%BF/%CE%B1%CF%81%CF%87%CE%B1%CE%B9%CE%BF%CE%BB%CE%BF%CE%B3%CE%B9%CE%BA%CF%8C%CF%82-%CF%87%CF%8E%CF%81%CE%BF%CF%82-%CE%B1%CF%85%CE%BB%CE%AF%CE%B4%CE%B1%CF%82-2355646
- Η χωροταξία του αρχαιολογικού χώρου: στα όρια της Ευβοϊκής και Βοιωτικής ακτής. Φωτ. Μηνάς Πατσουράκης. Διαθέσιμο στον δικτυακό τόπο: http://www.schizas.com/site3/index.php?option=com_content&view=article&id=42386:2011-01-23-100000&catid=16:listes-tis-ellados&Itemid=196
-Ο αρχαιολογικός χώρος σε πρώτη θέα από τον επισκέπτη!...πίσω από την περίφραξη αποκαλύπτεται ό,τι απόμένει από το ιερό της Αυλιδείας Αρτέμιδας... Διαθέσιμο στον δικτυακό τόπο: http://www.trivago.gr/%CF%87%CE%B1%CE%BB%CE%BA%CE%AF%CE%B4%CE%B1-447541/%CE%BC%CE%BD%CE%B7%CE%BC%CE%B5%CE%AF%CE%BF/%CE%B1%CF%81%CF%87%CE%B1%CE%B9%CE%BF%CE%BB%CE%BF%CE%B3%CE%B9%CE%BA%CF%8C%CF%82-%CF%87%CF%8E%CF%81%CE%BF%CF%82-%CE%B1%CF%85%CE%BB%CE%AF%CE%B4%CE%B1%CF%82-2355646
- 0ι κατατοπιστικές πληροφορίες για τον αρχαιολογικό χώρο! Ο χάρτης που αποτυπώνει τα σημεία των ανασκαφών. Φωτ. Μηνάς Πατσουράκης. Διαθέσιμο στον δικτυακό τόπο:http://www.trivago.gr/%CF%87%CE%B1%CE%BB%CE%BA%CE%AF%CE%B4%CE%B1-447541/%CE%BC%CE%BD%CE%B7%CE%BC%CE%B5%CE%AF%CE%BF/%CE%B1%CF%81%CF%87%CE%B1%CE%B9%CE%BF%CE%BB%CE%BF%CE%B3%CE%B9%CE%BA%CF%8C%CF%82-%CF%87%CF%8E%CF%81%CE%BF%CF%82-%CE%B1%CF%85%CE%BB%CE%AF%CE%B4%CE%B1%CF%82-2355646
- Οι πέτρες που δεν είναι απλά πέτρες αλλά κάτι περισσότερο! (Φωτ. Μηνάς Πατσουράκης. Διαθέσιμο στον δικτυακό τόπο: http://agro.in.gr/assets/content200/photo/70046_b.jpg
- Θέατρο Αυλιδείας Αρτέμιδος στον όρμο μικρό Βαθύ.Ανενεργό λατομείο για πολλά χρόνια... Διαθέσιμο στον δικτυακό τόπο: http://upload.wikimedia.org/wikipedia/el/f/f2/%CE%98%CE%AD%CE%B1%CF%84%CF%81%CE%BF_%CE%91%CF%85%CE%BB%CE%AF%CE%B4%CE%B1%CF%82.JPG
- Άποψη του ιερού της Αρτέμιδος. Διαθέσιμο στον δικτυακό τόπο: http://odysseus.culture.gr/h/3/gh351.jsp?obj_id=2417
- Ο αρχαιολογικός χώρος της Αυλίδας. Διαθέσιμο στον δικτυακό τόπο: http://agro.in.gr/opinions/yourphotos/article/?aid=1231074772
- από φωτογραφίες από προσωπικά αρχεία σχετικές με την παράσταση του θεάτρου Χαλκίδας στην Αυλίδα / καλοκαίρι 2012
- από φωτογραφίες που οι ίδιοι σκάναραμε:
-Ιφιγένεια, άγαλμα ιέρειας Ζωπυρείνας, ρωμαϊκό αντίγραφο αγάλματος της Αρτέμιδας από το ναό της θεάς στην Αυλίδα, άγαλμα της Εκάτης, κρήνη (από το περιοδικό ΠΑΡΡΗΣΙΑ, τεύχ.11, Μάϊος-Ιούνιος, 2004).
-Αγάλματα και βάθρα από την ανασκαφή του Ι. Θρεψιάδη στην Αυλίδα, άλλοτε εκτεθειμένα στη στοά του αιθρίουτου Μουσείου Χαλκίδας (τώρα στο Μουσείο Θηβών, πήλινος λύχνος από το χώρο, αγγείο / σκύφος από το χώρο (από το βιβλίο Καραπασχαλίδου, Α. (2010), Αρχαιολογικός χώρος Αυλίδας - 55 χρόνια ανασκαφών Ιωάννη Θρεψιάδη. - Ναός Αυλιδείας Αρτέμιδας).
-Κάτοψη ναού (από τα Πρακτικά της Αρχαιολογικής Εταιρείας 1956).
Αποσπάσματα από ταινίες και θεατρικές παραστάσεις:
- Ιφιγένεια εν Αυλίδι. Διαθέσιμο στον δικτυακό τόπο: http://www.youtube.com/watch?v=nBMURc1Kt14
- Θέατρο Τέχνης 1999. Χορικό - Απόσπασμα - Σκηνοθεσία Γιώργου Λαζάνη Αρχαίο Θέατρο Πάτρας. Διαθέσιμο στον δικτυακό τόπο:http://www.youtube.com/watch?v=ynha3qfgisE




























